Espace propriétaire
Espace propriétaire
fr

Votre recherche

La Riche (37520)

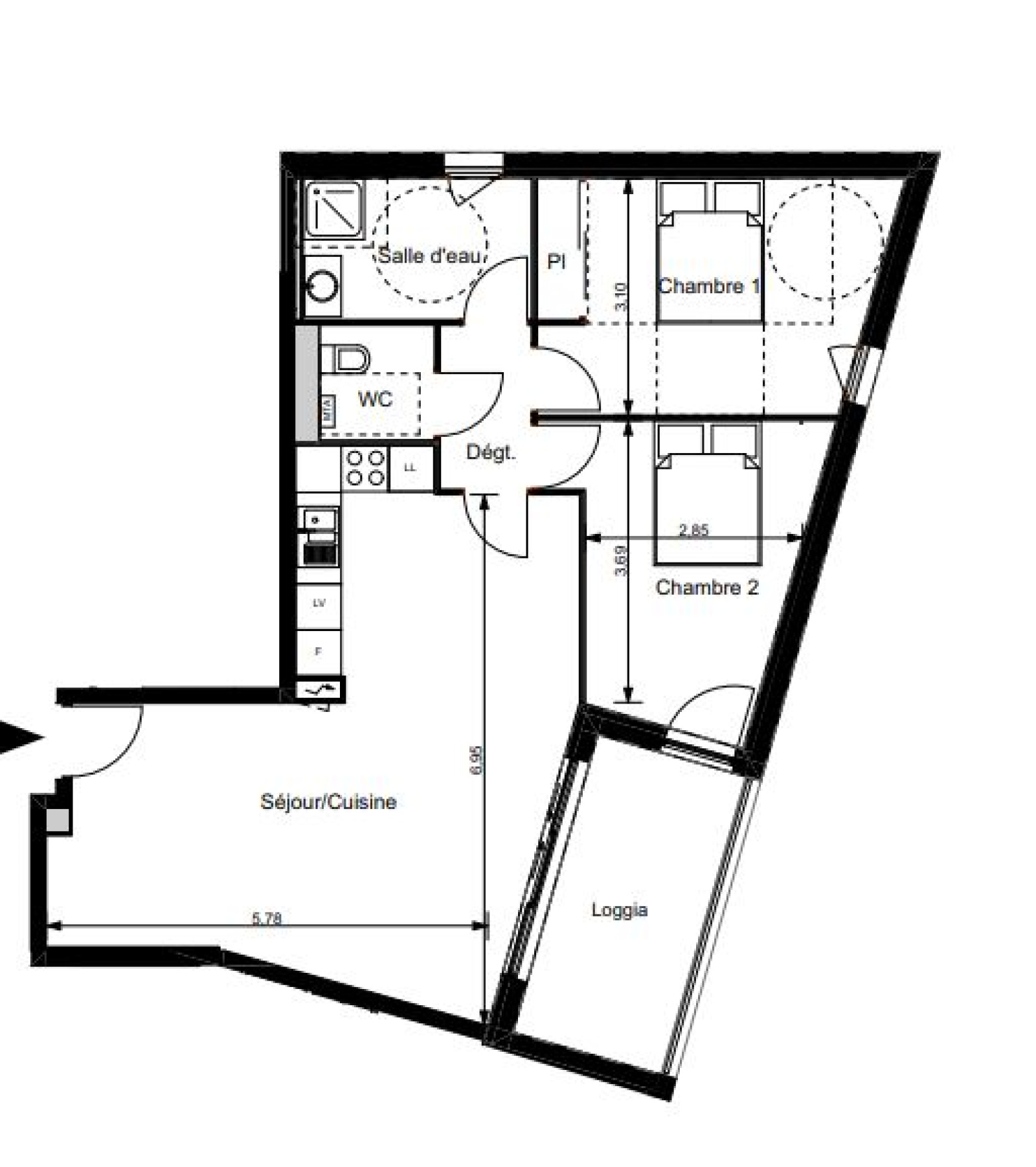
3 pièces - 68,90 m²

NOUVEAUTÉ Appartement T3 dans une résidence de Standing proche Tours

302 000 €
Ref : JA 3205-14
A propos de ce bien

Idéalement située, dans une rue paisible, face au jardin botanique, à proximité immédiate des commerces, des transports (Place Sainte-Anne à 250m), ainsi que du centre historique de Tours, cette nouvelle résidence allie élégance, confort et qualité de vie.

Venez découvrir ce charmant appartement de Type 3 de 68m², avec une pièce de vie ouvrant sur la cuisine de près de 33m², une chambre avec placard de 13m², une seconde chambre 11.46 m², une salle d'eau et un WC indépendant. Et vous pourrez profiter d'un loggia de 8.1 m².

Cette résidence à taille humaine séduit par son architecture classique, sobre et contemporaine, parfaitement intégrée dans son environnement.

Pensée pour le bien-être au quotidien, elle offre des prestations haut de gamme :

  • Volets roulants électriques

  • Double vitrage performant

  • Chauffage urbain

  • Parquet dans les pièces de vie

  • Serrure de sécurité 5 points

  • Salles de bain et salles d’eau entièrement équipées

  • Placards intégrés et aménagés

  • Accès sécurisé avec contrôle d’accès et vidéophone

Que vous recherchiez une résidence principale, un pied-à-terre ou un investissement patrimonial, cette adresse rare vous garantit un cadre de vie privilégié, au cœur d’un quartier prisé de Tours.

Opportunité à ne pas manquer Contactez-nous dès maintenant pour plus d’informations et pour réserver votre futur logement.

Le bien est soumis au statut de la copropriété, Pas de procédure en cours.

25 lots principaux

2031 € de charges annuelles dont 1095 € consommations au compteur individuel ( chauffage et eau)

Pour visiter, contactez Anaïs JOURDAN Agent commercial (E.I.) 06 81 87 42 10 Clemente & Partners by Connecta RCS Tours 899 795 165

Consultez les risques naturels et technologiques auxquels ce bien est exposé sur le site :
www.georisques.gouv.fr

Annonce proposée par un agent commercial

Descriptif de ce bien
Général
Code postal 37520
Surface loi Carrez (m²) 68,90 m²
Nombre de chambre(s) 2
Nombre de pièces 3
Etage 1
Nombre de niveaux 1
Ascenseur OUI
Détails
Nb de salle d'eau 1
Cuisine Sans
Mode de chauffage Autre
Type de chauffage Autre
Format de chauffage Individuel
Balcon OUI
Cave NON
Exposition Ouest
Année de construction 2024
Composition
Etage 1
salon/sejour 33.35 m²

Dégagement 2.58 m²

WC 2.26 m²

salle d'eau 5.72 m²

chambre 13.53 m²

chambre 11.46 m²

loggia 8.10 m²

Financier
Prix de vente 302 000 €
Les honoraires d'agence seront intégralement à la charge du vendeur  
Taxe foncière annuelle 1 035 €
Energie
DPE GES
Contacter pour ce bien
L'agent
JOURDAN Anaïs
Téléphone 0681874210

* Champ obligatoire

Les informations recueillies sur ce formulaire sont enregistrées dans un fichier informatisé par La Boite Immo agissant comme Sous-traitant du traitement pour la gestion de la clientèle/prospects de l'Agence / du Réseau qui reste Responsable du Traitement de vos Données personnelles. La base légale du traitement repose sur l'intérêt légitime de l'Agence / du Réseau. Elles sont conservées jusqu'à demande de suppression et sont destinées à l'Agence / au Réseau. Conformément à la loi « informatique et libertés », vous disposez des droits d’accès, de rectification, d’effacement, d’opposition, de limitation et de portabilité de vos données. Vous pouvez retirer votre consentement à tout moment en contactant directement l’Agence / Le Réseau. Consultez le site https://cnil.fr/fr pour plus d’informations sur vos droits. Si vous estimez, après avoir contacté l'Agence / le Réseau, que vos droits « Informatique et Libertés » ne sont pas respectés, vous pouvez adresser une réclamation à la CNIL. Nous vous informons de l’existence de la liste d'opposition au démarchage téléphonique « Bloctel », sur laquelle vous pouvez vous inscrire ici : https://www.bloctel.gouv.fr Dans le cadre de la protection des Données personnelles, nous vous invitons à ne pas inscrire de Données sensibles dans le champ de saisie libre.
Ce site est protégé par reCAPTCHA, les Politiques de Confidentialité et les Conditions d'Utilisation de Google s'appliquent.

Découvrir nos outils