Espace propriétaire
Espace propriétaire
fr

Votre recherche

Prix en baisse
Vineuil (41350)

4 pièces - 99,75 m²

VINEUIL - PAVILLON PLAIN-PIED DE 2024 - 3 Ch - 99.75m²

266 000 €
Ref : CR 3224
A propos de ce bien

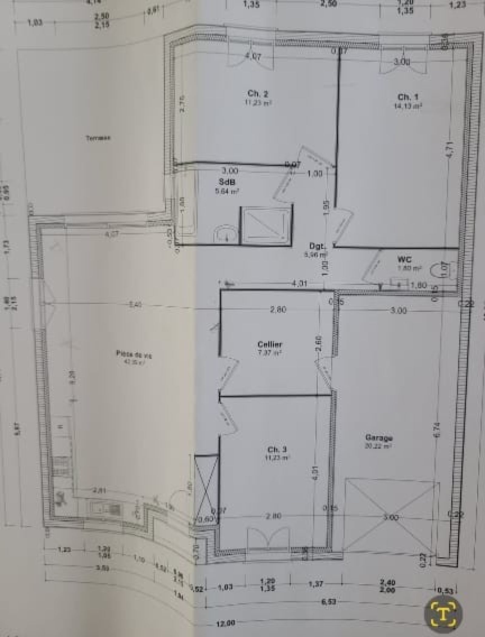
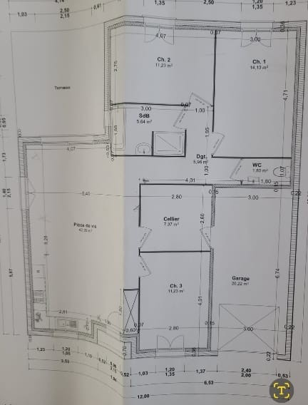
Construit en 2024 (garantie décennale) sur une terrain de 470m² totalement clos, ce pavillon de plain-pied de 99.75m², conforme aux normes RT 2020, saura vous séduire par ses volumes, ses matériaux et équipements de qualité.

Composé d'une pièce de vie lumineuse et spacieuse avec cuisine ouverte équipée et aménagée, complétée d'un cellier/buanderie donnant accès au garage.

L’espace nuit comprend trois chambres, une salle de bains avec douche à l’italienne et baignoire, ainsi qu’un WC indépendant.

Prestations de qualité :

  • Chauffage par pompe à chaleur avec plancher chauffant.

  • Production d’eau chaude par système thermodynamique.

  • Portail et porte de garage motorisés.

Honoraires à la charge de l'acquéreur;

Net Vendeur : 250 000 € soit 6.1% d'honoraires

Contactez-moi dès aujourd'hui au 07.82.06.90.21 pour organiser une visite, Régis Chicoisne (EI) Connecta-Immobilier _ RSAC Blois 910 548 189.

Les informations sur les risques auxquels ce bien est exposé sont disponibles sur le site Géorisques : www.georisques.gouv.fr.



Annonce proposée par un agent commercial

Descriptif de ce bien
Général
Code postal 41350
surface terrain 470 m²
Nombre de chambre(s) 3
Nombre de pièces 4
Vue Cour intérieure
Détails
Nb de salle de bains 1
Cuisine Américaine
Type de cuisine Equipée
Mode de chauffage Aérothermique
Type de chauffage Au sol
Format de chauffage Individuel
Terrasse OUI
Nombre de garage 1
Nombre de parking 2
Exposition Sud-Est
Année de construction 2024
Financier
Prix de vente honoraires TTC inclus 266 000 €
Prix de vente honoraires TTC exclus 250 000 €
Honoraires TTC à la charge acquéreur 6,4 %
Dépôt de garantie TTC 12 000 €
Energie
DPE GES
Contacter pour ce bien
L'agent
CHICOISNE Régis Mandataire Blois (41000)
Téléphone 07.82.06.90.21

* Champ obligatoire

Les informations recueillies sur ce formulaire sont enregistrées dans un fichier informatisé par La Boite Immo agissant comme Sous-traitant du traitement pour la gestion de la clientèle/prospects de l'Agence / du Réseau qui reste Responsable du Traitement de vos Données personnelles. La base légale du traitement repose sur l'intérêt légitime de l'Agence / du Réseau. Elles sont conservées jusqu'à demande de suppression et sont destinées à l'Agence / au Réseau. Conformément à la loi « informatique et libertés », vous disposez des droits d’accès, de rectification, d’effacement, d’opposition, de limitation et de portabilité de vos données. Vous pouvez retirer votre consentement à tout moment en contactant directement l’Agence / Le Réseau. Consultez le site https://cnil.fr/fr pour plus d’informations sur vos droits. Si vous estimez, après avoir contacté l'Agence / le Réseau, que vos droits « Informatique et Libertés » ne sont pas respectés, vous pouvez adresser une réclamation à la CNIL. Nous vous informons de l’existence de la liste d'opposition au démarchage téléphonique « Bloctel », sur laquelle vous pouvez vous inscrire ici : https://www.bloctel.gouv.fr Dans le cadre de la protection des Données personnelles, nous vous invitons à ne pas inscrire de Données sensibles dans le champ de saisie libre.
Ce site est protégé par reCAPTCHA, les Politiques de Confidentialité et les Conditions d'Utilisation de Google s'appliquent.

Découvrir nos outils